产品中心
当前位置 当前位置:首页 > > 产品中心

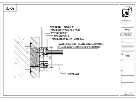
50FPT系列115款隔热型防火玻璃隔断系统

发布时间:2023-02-16 18:55:02

材料名称:50FPT系列115款隔热型防火玻璃隔断系统

耐火等级:A类1小时

侧单玻隔断示意图

双玻隔断示意图

       主要适用于避难层、幕墙防火窗、疏散走道两侧的隔墙等具有消防要求的公共建筑、商业建筑、住宅等,如医院、图书馆、博物馆、展览馆、电影院、剧院、机场、写字楼、高层住宅、机房等。