产品中心
当前位置 当前位置:首页 > > 产品中心

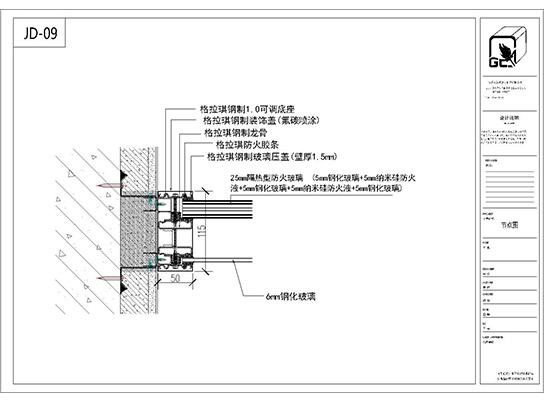
A类1小时-防火隔断

发布时间:2023-02-16 16:08:09

A1.0侧单玻隔断节点

A1.0双玻隔断节点

       防火隔断同时满足耐火完整性、耐火隔热性要求。主要适用于具有消防要求的公共建筑、商业建筑、住宅等,如医院、图书馆、博物馆、展览馆、电影院、剧院、机场、写字楼、高层住宅、机房等。